
NA PREDAJ APARTMÁN KAPVERDY - SAL 73m2 REZORT TUI BLUE
- Predaj
- 2-izbový byt
- 73 m2
KOLLAR REALITY
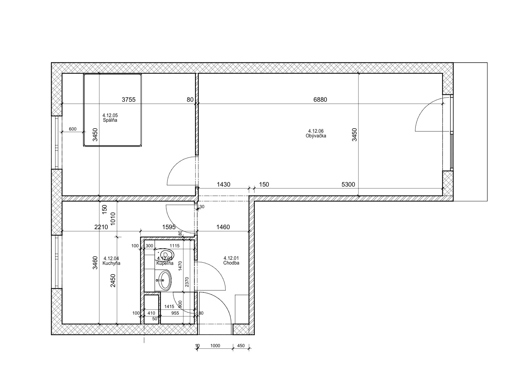
Vám ponúka na predaj svetlý 2-izbový byt s rozlohou 55m2 v obľúbenej lokalite Martin-Sever.
Byt sa nachádza na 4 poschodí z štyroch v udrživanom bytovom dome.
Súčastou bytu je lodžia 6m2. Byt je v dokončovacej fáze celkovej rekonštrukcie. Dokončenie rekonštrukcie február 2025
ORIENTÁCIA: Juhozápad
POSCHODIE: 4/4
OBČIANSKA VYBAVENOSŤ: škôlky,školy,lekárne ,pošta ,reštaurácie,katastrálny úrad , obchody .Výborná dostupnosť verejnou dopravou aj autom, blízko centra mesta. Autobusová zastávka pešo 2minúty.
DISPOZIČNÉ RIEŠENIE: vstupná chodba na ktorej sa nachádza na ľavo kupeľna+wc,kuchyňa. Oproti vstupnej chodbe sa nachádza obývacia izba z ktorej je na pravo lodžia a na ľavo spálňa.
Byt: je v dokončovacej fáze celkovej rekonštrukcie.Dokončenie rekonštrukcie 15.02.2025. Byt bude kompletne zariadený s kvalitným vybavením .
Parkovanie: bezplatné pred domom a bezproblémové
Byt je ideálny pre jednotlivcov, páry, alebo mladú rodinu.
Cena nehnuteľnosti: 150000€
V prípade záujmu o obhliadku, alebo bližšie informácie ma kotaktujte na telefónnom čísle :
Adriana Bilková
0911 868 756
adriana.bilkova@kollarreality.sk
Mestská časť: | Sever |
---|---|
Obec: | Martin |
Okres: | Martin |
Kraj: | Žilinský kraj |
Druh: | Byty |
Typ: | Predaj |
Typ bytu: | 2-izbový byt |